IANCU NICOLAE | 1 BEDROOM APARTMENT | DEVELOPER
174,345 EUR +TVA
- ID THE1698
- Bedrooms 2
- Baths 1
- Construction year 2024
DEVELOPER - 0% COMMISSION
1-BEDROOM APARTMENT IANCU NICOLAE - PIPERA, JUST A FEW MINUTES AWAY FROM CAMBRIDGE SCHOOL!
The Megarosa Pipera complex is located in a prime area, close to international schools (Cambridge School, Mark Twain, British School, Little London), the Jolie Ville Galleria shopping center, Lidl, Baneasa Forest, Baneasa Zoo, with easy access to both DN1 and Blv Pipera.
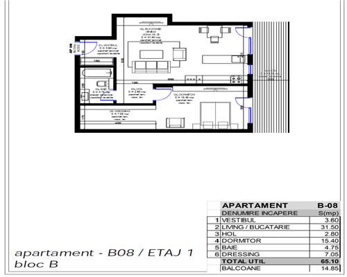
The apartment is on the 1st floor of a 3-story building, with a built area of 85 sqm and a generous 15 sqm terrace. It is divided as follows: hallway, living room with a dining area and open-space kitchen of 35 sqm, a 15.40 sqm bedroom with a 7.05 sqm dressing room, and a bathroom.
Compound facilities:
Video surveillance, gated complex with barrier;
High-end community;
Underground parking;
Landscaped green areas;
Playground for children.
The project will be completed in 2027
Contact us to schedule a viewing!
MORE ABOUT THE PROPERTY
- Streets: Asfaltate, Iluminat stradal, Mijloace de transport in comun
- Bedrooms: 1
- Baths: 1
- Regime Height: 1
- Kitchens: 1
- Construction year: 2024
- Destination: Locuinta
- Stage: In constructie
- Comfort: lux
- Partitioning: decomandat
- Balcony: 1
- Destination:Housing ,
- Elevator:Yes ,
- Entrance Door:Metal ,
- Finishing Stage:Under construction ,
- Flooring:Parquet ,Sandstone ,
- Geam baie: ,
- Heating:Underfloor heating ,
- Internet Access:Optical fiber ,Wireless ,
- Kitchen:Yes ,
- Neighborhoods:Mall ,Pedestrian traffic ,Fastfood ,Supermarket ,Bank ,Commercial area ,Bus ,Restaurant/pub ,School/kindergarten ,
- Services:Administration ,
- Streets:Asphalted , , ,
- Thermal Insulation:Interior ,Exterior ,
- Unit Type:Block ,
- Utilities:Gas ,Sewerage ,Water ,Electricity ,Internet ,
- Walls:Washable wall paint ,Ceramic tile ,
- Windows:Aluminum ,

