IANCU NICOLAE | 3BEDROOM APARTMENT | CAMBRIDGE SCHOOL | COMISSION 0%
333,160 EUR +TVA
- ID THE1697
- Bedrooms 4
- Baths 2
- Construction year 2025
DIRECT DEVELOPER - 0% COMMISSION
3-BEDROOM APARTMENT IANCU NICOLAE - PIPERA, JUST A FEW MINUTES AWAY FROM CAMBRIDGE SCHOOL!
The Megarosa Pipera complex is located in a prime area, close to international schools (Cambridge School, Mark Twain, British School, Little London), the Jolie Ville Galleria shopping center, Lidl, Baneasa Forest, Baneasa Zoo, with easy access to both DN1 and Blv Pipera.
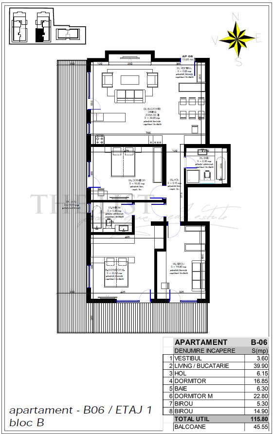
The apartment is on the 1st floor of a 3-story building, with a built area of 150 sqm and a generous 45 sqm terrace. It is divided as follows: a living room with a dining area and an open space kitchen of 43 sqm, a master bedroom of 21 sqm with an en-suite bathroom of 5.3 sqm, and two additional bedrooms sharing a common bathroom.
Compound facilities:
Video surveillance, gated complex with barrier;
High-end community;
Underground parking;
Landscaped green areas;
Playground for children.
The project will be completed in 2027.
Contact us to schedule a viewing!
MORE ABOUT THE PROPERTY
- Streets: Asfaltate, Iluminat stradal, Mijloace de transport in comun
- Bedrooms: 3
- Baths: 2
- Regime Height: 1
- Kitchens: 1
- Construction year: 2025
- Destination: Locuinta
- Stage: In constructie
- Comfort: lux
- Partitioning: decomandat
- Destination:Housing ,
- Elevator:Yes ,
- Entrance Door:Metal ,
- Finishing Stage:Under construction ,
- Flooring:Parquet ,Sandstone ,
- Geam baie: ,
- Heating:Own heating ,Underfloor heating ,
- Internet Access:Optical fiber ,Wireless ,
- Kitchen:Yes ,
- Neighborhoods:Mall ,Pedestrian traffic ,Fastfood ,Supermarket ,Bank ,Commercial area ,Bus ,Restaurant/pub ,School/kindergarten ,
- Services:Administration ,
- Streets:Asphalted , , ,
- Thermal Insulation:Interior ,Exterior ,
- Unit Type:Block ,
- Utilities:Gas ,Sewerage ,Water ,Electricity ,Internet ,
- Walls:Washable wall paint ,Ceramic tile ,
- Windows:Aluminum ,

